
نتایج تجربه، صداقت و تخصص ما
شرکت مهندسی اطلس بوم، ارائه خدمات مهندسی نقشه برداری توسط اکیپهای مجرب نقشه برداری با تجهیزات کامل
گزیده ای از پروژه های اطلس بوم

نقشه UTM برای اراضی و ساختمانهای فاقد سند رسمی
قیمت تهیه نقشه UTM برای اراضی و ساختمانهای فاقد سند رسمی با توجه به موقعیت ملک، مساحت ملک و نوع کاربری متفاوت هست

آموزش نقشه برداری کارگاهی
اردوی کارورزی درس نقشه برداری کارگاهی در خدمت دانشجویان کارشناسی دانشگاه تفرش شهریور ۱۴۰۳
#آموزش نقشه برداری

آموزش نقشه برداری کارگاهی
اردوی کارورزی درس نقشه برداری کارگاهی در خدمت دانشجویان کارشناسی دانشگاه تفرش شهریور ۱۴۰۳
#آموزش نقشه برداری

جانمایی آکس ستون
دو دهه دقت، تخصص و تجربه اطلس بوم در انجام بهترین پروژه ها
#جانمایی صفحه ستون
#تراز صفحه ستون
#نقشه برداری

شاقولی ستون
تایین میزان شاقولی و بررسی حد استاندارد
#شاقولی ستون
#شاقولی سازه
#کنترل شاقولی ستون

جانمایی فونداسیون
جانمایی فونداسیون ساختمان
#جانمایی
#فونداسیون
#البرز

پروژه تاپکو فرودگاه پیام مهرشهر
مراحل مختلف نقشه برداری از لحظه خاکبرداری تا احداث سوله
#توتال استیشن
#نقشه بردارالبرز
#نقشه بردارماهدشت

مانیتورینگ
کنترل دیواره های گود برداری به منظور مشاهدت مقدار جابجایی های گود از یک سری نقطه یا تارگت استفاده میکنم این تارگت ها را در جاهایی که بیشترین احتمال ریزش یا جابجایی وجود دارد نصب میکنیم و با قرائت روزانه در یک یا چند مرتبه مقدار جابجایی را گزارش میدهیم تا پیمانکار یا کارفرما برای جلوگیری از خطرات احتمالی بهترین تصمیم را اتخاذ نمایید
#مانیتورینگ
#نقشه بردار کرج
#کنترل دیواره گود

جانمایی نقشه سایت پلان
انجام کلیه امور جانمایی، از قبیل جانمایی ملک و جانمایی فونداسیون
#جانمایی
#جانمایی سایت پلان

جانمایی عرصه ملک
انجام کلیه امور جانمایی، از قبیل جانمایی ملک و جانمایی فونداسیون
#جانمایی
#جانمایی ملک
#نقشه برداری

تهیه نقشه ازبیلت
نقشه ازبیلت، نقشهای است که وضعیت فعلی پروژه را همانگونه که هست به نمایش میگذارد. این نقشه، امکان مقایسه نتیجه فعالیتهای اتمام یافته با طرحها و نقشههای نهایی را فراهم میکند.
#نقشه ازبیلت
#ازبیلت بنا
#تهیه ازبیلت

نقشه برداری صنعتی
از دقیق ترین و حساس ترین خدمات نقشه برداری
#نقشه برداری صنعتی
#نقشه برداری تخصصی

نقشه برداری صنعتی
جانمایی دستگاه ها و تجهیزات کارخانه ای
#نقشه برداری صنعتی
#تجهیزات
#فتوگرامتری

شاقولی ستون
مهندس نقشه بردار در تمامی ستونها رادر دو محور یا در دو وجه از ستون کنترل می کند و اگر ستونی ناشاغولی آن بیشتر از حد مجاز آیین نامه که معمولا یک پانصدم ارتفاع ستون هست باشد بایداصلاح گردد
#شاقولی ستون
#نقشه برداری
#ساختمان

تهیه نقشه ازبیلت
تهیه نقشه ازبیلت به منظور بررسی صورت وضعیت، ارائه به سازمانها و نهادهای دولتی، بررسی و مشاهد، میزان خطاهای و تغییراتی طرح اجرا شده با نقشه های مصوب دارد برخی از این نقشه ها عبارتند از ازبیلت نمای ساختمان ازبیلت قطعه صنعتی ساخته شده ازبیلت ساختمان ازبیلت خطوط انتقال نیرو
#نقشه ازبیلت کرج
#قشه ازبیلت ساختمان
#ازبیلت نما

تهیه نقشه یوتی ام
تهیه نقشه یوتی ام (UTM) به منظور ارائه از طرف مالک به سارمانها و نهادهای دولتی انجام میشود جهت گرفتن سند تک برگ، استعلام نوع کاربری، گرفتن انشعابات و غیره مورد استفاده قرار میگیردکه حتما باید توسط افراد با صلاحیت با مهر و امضائ معتبر باشد
#نقشه یو تی ام کرج
#تهیه نقشهUTMکرج
#نقشه برای گرفتن سند

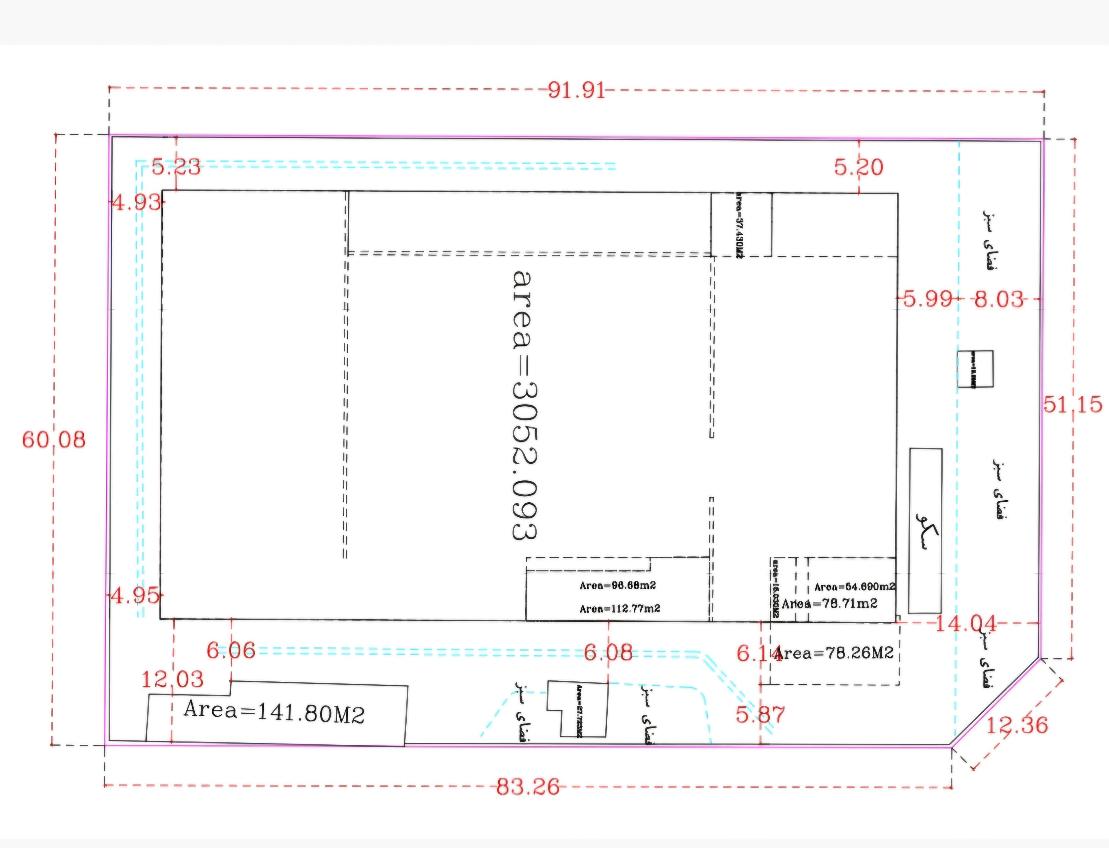
نقشه پیش تفکیک طبقات
نقشه utm وضع موجود در کرج، مهرشهر
#کرج
#مهرشهر
#نقشه پیش تفکیک

پیاده سازی نقشه طبق نقشه سایت پلان
پیادهسازی نقشه طبق نقشه سایت پلان فرآیندی است که در آن یک طرح مهندسی (سایت پلان) به طور عملی در محل پروژه اجرا میشود. سایت پلان یک نقشه جامع و دقیق از یک سایت است که شامل جزئیات مکانی، ویژگیها، و مشخصات ساختاری مختلف است که باید در پروژه پیادهسازی شوند.
#نقشه سایت پلان
#نقشه برداری

اجرای فونداسیون پیاده کردن آکس صفحه ستون
اجرای فونداسیون پیاده کردن آکس صفحه ستون و کنترل نهایی تراز پلیتها جهت اجرای پایه های سوله
#جانمایی فونداسیون
#البرز
#نقشه برداری